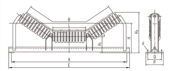
緩沖托輥是安裝在輸送機機尾用來支承輸送帶和輸送帶上所承載的物料,它減少了物料對輸送帶的沖擊。緩沖托輥技術參數隨輸送帶寬度不同而不同。
產品參數
江蘇雙箭輸送機械有限公司專業生產各種型號的托輥,其中皮帶機緩沖托輥分有各類槽形托輥組,各類平行托輥組,各類調心托輥組,各類緩沖托輥組。
緩沖托輥(impact idler),緩沖托輥用于帶式輸送機受料處減緩落料對輸送帶的沖擊,主要針對洗煤廠、焦化廠、化工廠等腐蝕性環境而研制的一類托輥,它本身具有的韌性是普通金屬的10倍以上,壽命為傳統柱鞋的五倍,耐腐蝕阻燃,自重輕等特點,廣泛用于礦山開采。托輥輥體專用的高分子材料,其機械性能類似于青銅,具有良好的自潤滑性能,不傷皮帶。 緩沖托輥防腐性能優越。輥體及密封件都用高分子材料制作,耐腐蝕。在腐蝕性場合使用,使用壽命可達到普通托輥的5倍以上。
緩沖托輥重量輕,旋轉慣性小。托輥專用高分子材料重量輕,比重是鋼材的七分之一,用這種材料制成的托輥,重量是普通托輥的二分之一左右,旋轉慣性小,托輥與皮帶之間的摩擦小。
緩沖托輥安裝在輸送機受料段的下方,減小落料時物料對輸送帶的沖擊,以延長輸送帶的使用壽命.緩沖托輥的間距一般100-600毫米。
緩沖托輥在安裝方面一是提高安裝的密度;二是經常檢查,及時更換損壞的托輥。對于落料落差較大的輸送帶建議安裝緩沖鎖氣器,將緩沖托輥用緩沖床代替。在選購方面根據緩沖托輥的特點提出一下幾點注意事項:托輥徑向跳動量、托輥靈活度、軸向竄動量、托輥防塵性能、防水性能、托輥軸向承載性能、托輥抗沖擊性能等。
標準直徑參數:
按照輸送機行業標準,帶寬500mm-1400mm的皮帶輸送機,緩沖托輥直徑共設有4種標準類型,分別為:φ89mm,φ108mm,φ133mm,φ159mm。
隨著大帶寬皮帶輸送機的出現,緩沖托輥的直徑也出現增大的趨勢。
緩沖托輥的保護:
(1)緩沖托輥溫度保護
帶式輸送機滾筒與皮帶摩擦使其溫度超限時,緊貼滾筒安裝的檢測裝置發出超溫信號,接收機收到信號后,經3s 后,使執行部分動作,切斷電動機供電,輸送機自動停轉,起到溫度保護作用。
(2)托輥組速度保護
若輸送機發生故障,如電動機燒毀、機械傳動部分損壞、皮帶或鏈子拉斷、皮帶打滑等,安裝在輸送機被動機件上的事故傳感器SG中的磁控開關不能閉合或不能按正常速度閉合這時控制系統將按反時限特性,速度保護電路起作用,使執行部分動作,切斷電動機供電,以避免事故擴大。
(3)緩沖托輥煤倉煤位保護
煤倉中設高低兩個煤位電極,煤倉由于無空車不能放煤時,煤位將逐步升高,當煤位上升到高位電極時,煤位保護動作,從首臺皮帶輸送機開始,各臺輸送機因機尾堆煤依次停車。
緩沖托輥的安裝注意事項:
a.提高安裝密度;
b.經常檢查更換損壞的托輥
緩沖托輥的選購注意事項:
a.緩沖托輥徑向跳動量、托輥的靈活度、軸承竄動量;
b.緩沖托輥防塵性能、防水性能;
c.緩沖托輥軸向承載性能;
d.緩沖托輥抗沖擊性能
帶式輸送機緩沖托輥的正確選擇:
在帶式輸送機中的應用十分重要,它支撐著輸送帶,并且承受著物料的重量。由此可見托輥的作用十分重要。所以托輥的結構性能就顯得更加的重要。
緩沖托輥專用高分子材料,重量輕,比重是鋼材的七分之一,用這種材料制成的托輥,重量是普通托輥配件的二分之一左右,旋轉慣性小,托輥與皮帶之間的磨擦小,有效的減少之間的摩擦??s小托輥間距可減少模擬摩擦系數,但阻力總值會增大,除在卸載點為保護膠帶外在一般承載段不要加大托輥密度。此外,緩沖托輥橡膠圈使用壽命長。托輥輥體專用高分子材料,其繼續性能類似于青銅,具有良好的自潤滑性能,不傷皮帶。緩沖托輥的類型也很多,比如,彈簧板型、緩沖圈型、強力緩沖型、等等。所以在選擇的時候要選擇適當。在選擇托輥時,要注意托輥的徑向跳動量,托輥的靈活度,以及軸向的竄動量。在物料落差大于六米以上的地點,我們要選用緩沖托輥,這樣不僅可以有效減少皮帶物料沖擊、磨損,同時還可以防止皮帶被硬物撕裂。
由此可見,托輥對于帶式輸送機十分重要。選擇好的托輥,能保證生產的正常進行。
咨詢QQ:1210189900 還可以關注我們 微信公眾號:sjssjx

雙箭-槽型托輥組
雙箭-電動滾筒
雙箭-DTII帶式輸送機
雙箭-拉繩開關
雙箭-鼠籠式滾筒
雙箭-滾花式滾筒
雙箭-V型空段清掃器
雙箭-不銹鋼緩沖床Y